Описание
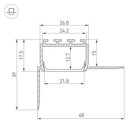
Угловой профиль, встраиваемый в гипсокартон. Под строительную отделку. Позволяет создать линию света между стеной и потолком шириной 24 мм., без видимых частей алюминия. Профиль монтируется на клей или строительную смесь. Для лент шириной до 24 мм.Цена за 1 м.
Характеристики
|
Производитель
|
Arlight |
|
Цвет
|
Серебристый |
|
Назначение
|
Для прямоугольных светильников |
|
Период обслуживания
|
2 года |
|
Рассеиваемая мощность (на 1м)
|
max: 37 W |
|
Серия
|
PLS |
|
Тип товара
|
Профиль |
|
Форма сечения
|
С фланцем |
|
Ширина площадки
|
24.2 мм |
|
Гарантийный срок
|
2 года |
|
Цвет покрытия
|
Серебристый |
|
Форма (сечение)
|
С фланцем |
|
Вес, кг
|
0.779 |




